Hyresledigt!
Björkbacken i Skyllberg
Nu hyr vi ut ett hus att älska! Välkommen till Björkbacken, en vackert belägen villa som kombinerar hemtrevlig atmosfär med modern funktionalitet. Villan är totalrenoverad, och ännu har ingen bott i den efter renoveringen. Här möts du av en inbjudande exteriör med grönskande trädgård och generösa uteplatser. Huset har naturen runt knuten, samtidigt som du har nära till service, kommunikationer och vardagens bekvämligheter. Skolbuss till Rönneshytta, 5 km bort. Där finns också bygdens varuhus. 250 meter till kulturmärkta idrottsplatsen Skyllbergsvallen med busshållplats, vilket ger smidiga förbindelser till Askersund, Hallsberg och Örebro – perfekt för både vardagspendling och fritid.
Fakta:
Boarea: 250 kvm
Pris: 15.000 kr/mån (kallhyra)
Byggnad:
Uppvärmning: Bergvärme
Vatten & Avlopp: Enskilt
Ventilation: FTX system i källaren
Renoveringar: Genomrenoverat 2024/2025
Drift: 16.000 kWh/år
Kontakt:
Fastighetschef Johan Jansson johan.jansson@skyllbergsbruk.se
Direkt: 076-003 93 08
Brukets växel: 0583-403 00
Bo i en härlig och ljus villa 30 min från Örebro
Naturligt ljusa rum och härlig känsla
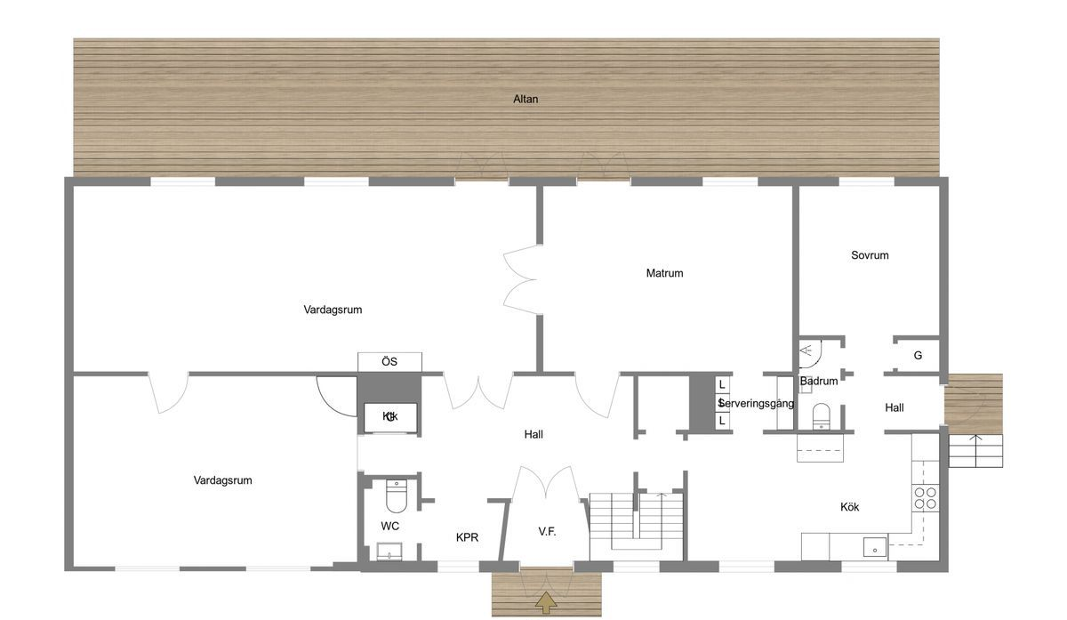
Invändigt präglas bostaden av ljusa och öppna ytor som genomsyras av trivsel och harmoni. Vardagsrum och matsal i fil, med stora fönster och dörrar ut mot altanen i västerläge fyller rummet med naturligt ljus och skapar en varm och välkomnande känsla. Här finns gott om plats för både umgänge och avkoppling, och den öppna planlösningen gör det enkelt att låta vardagen flyta mellan matplats, kök och sällskapsdel.
Välplanerat för familjeliv
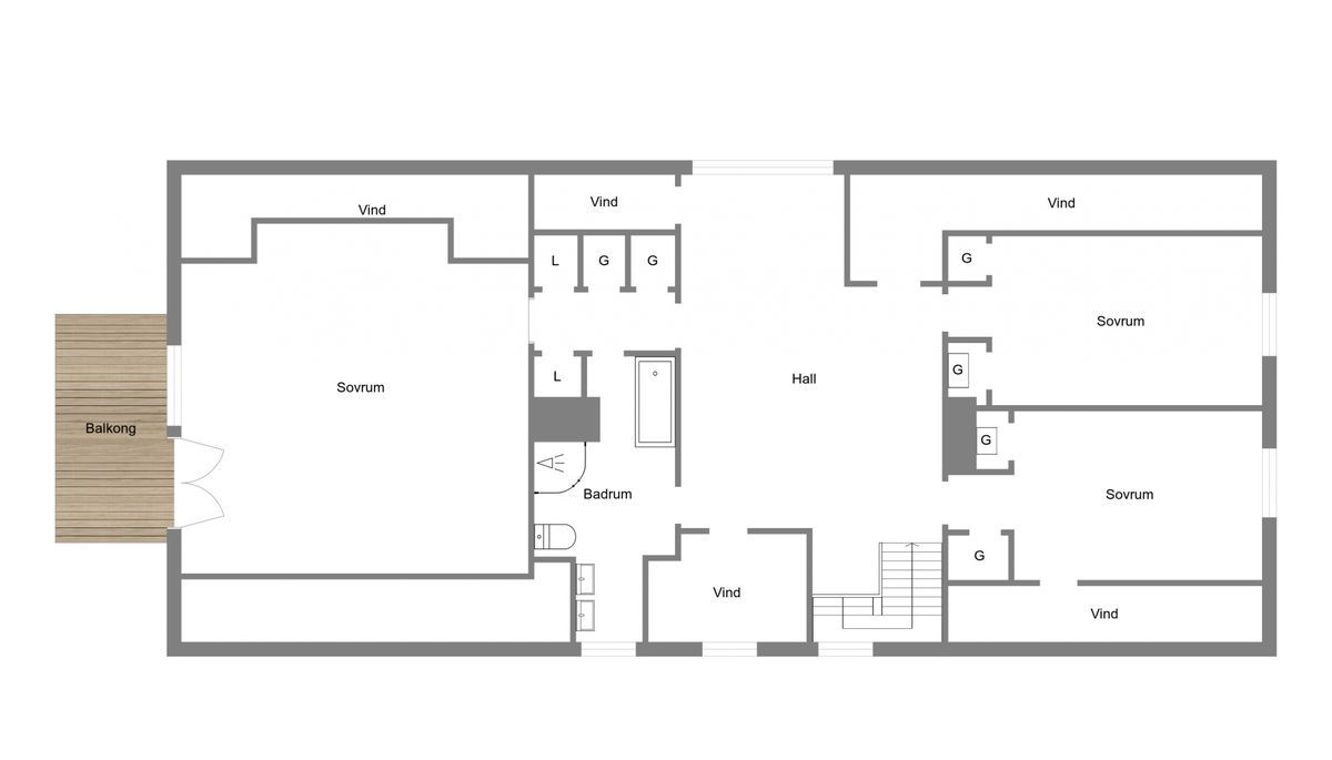
Köket är smakfullt utformat med goda arbetsytor och modern utrustning som gör matlagningen till en glädje. Här finns gott om förvaringsmöjligheter och en smart planering som gör att även större matlagningstillfällen kan ske utan stress. Husets 4 sovrum erbjuder rofyllda miljöer med plats för både förvaring och personliga inredningsdetaljer. 3 sovrum på övervåningen med badrum och 2 toaletter. 1 sovrum/gästrum med egen dusch och toalett på bottenvåningen.
En trädgård för lek, odling & vila
Trädgården är en av villans verkliga tillgångar – en grön oas som bjuder in till lek, odling eller lugn vila i solen. Här finns utrymme att skapa sina egna små favoritplatser, vare sig du uppskattar en lummig berså eller en öppen yta för sociala tillställningar. Under årets varmare månader blir uteplatsen en naturlig förlängning av vardagsrummet och en plats där hemmet verkligen öppnar sig mot omgivningen.
Björkbacken är mer än bara en bostad – det är ett hem där det är enkelt att trivas, med en fin balans mellan lugnet från naturen och bekvämligheten i att ha allt du behöver på nära håll. Här väntar ett boende som ger både livskvalitet och en känsla av trygghet, oavsett om du söker en plats för vardagens rutiner eller för att hitta lugnet bortom stadens tempo.































